LOST Architekten GmbH
Projekte
Werkliste
Büro
Kontakt
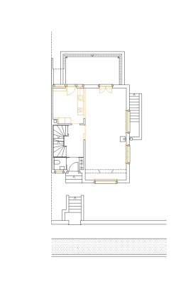
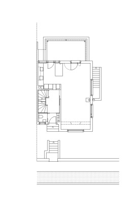
Wohnhaus Peter-Ochs-Strasse
EG Umbau Einfamilienhaus
Auftraggeber: privat
Basel
2022
Weiter
Zurück