Wohnhaus Lilienstrasse

Ersatzneubau Mehrfamilienhaus
Eingeladener Wettbewerb, 1. Preis
Auftraggeber: Vorsorgestiftung der Basler Versicherung AG
Allschwil
2018-2021
Die Parzelle des Mehrfamilienhauses befindet sich in einer Mischzone Neu-Allschwils mit zonentypischer, heterogener Nutzungs- und Bebauungsstruktur (Wohnen, Gewerbe, Schulen, Sportanlagen).
Die Vorsorgestiftung der Basler Versicherung wollte drei der vier Mehrfamilienhäuser sanieren und eines durch einen Neubau zu ersetzen. Im Rahmen eines Gesamtleistungswettbewerbs war ein Neubau zu entwerfen, mit dem die vorhandene Flächenreserve ausgeschöpft und die bestehende Tiefgarage erweitert werden kann.
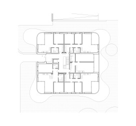
Mit Verlegung der bestehenden Tiefgarageneinfahrt an die Lilienstrasse wird die Durchwegung der Parzelle aufgewertet und neu konzipiert. Der kompakte, an der Parzellenecke platzierte Neubau fungiert als „Mittler“ zwischen dem durchgrünten, halböffentlichen Hofbereich und dem Quartier. Der Zugang zum Neubau erfolgt vom Lettenweg über den neu gestalteten Zugangsbereich. Ein rückversetzter Hauseingang führt zum zentralen Treppenhaus, mit dem alle 20 Wohnungen auf 3 Regelgeschossen und dem Attikageschoss erschlossen werden. Jede Wohnung hat einen offenen Wohn-, Ess- und Kochbereich, der sich um eine grosszügige Loggia bzw. Terrasse orientiert.
Das Gebäude wurde als hybrider Massivbau geplant und ausgeführt. Die vorgehängte, hinterlüftete und lasierte Holzfassade variiert im Rhythmus unterschiedlicher Profilstärken und Abstände und umfasst das gesamte Gebäude. Die Abstände der Holzlatten vergrössern sich vor allen Fenstern und bilden im Bereich der Loggien die Brüstung. Analog zur Struktur der Holzfassade sind vor den Fenstern Schiebeläden montiert und im Bereich der Loggien helle Vorhänge angebracht.

















