Siedlung Im Rheinacker

Aufstockung und Sanierung Mehrfamilienhäuser
Auftraggeber: Städtebau & Architektur Basel
Basel
2018-2025
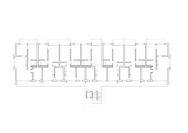
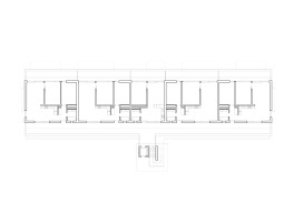
Die in den 1960er Jahren erbaute „Siedlung Im Rheinacker“, im Osten Basels und in direkter Nähe zum Rhein, ist eine weitläufige Wohnanlage mit 11 Zeilenbauten und insgesamt 188 Wohnungen. Die gute Substanz der zwei- bis fünfgeschossigen Gebäude hat erhebliche bauphysikalische Defizite und das zentrale Heizungssystem sowie alle Grundleitungen sind zu erneuern. Die bestehenden Flächenreserven der Parzelle sollen mit der Aufstockung von drei Zeilenbauten in Holzbauweise kompensiert werden. Diese umfasst 36 Wohnungen mit 2.5 bis 4.5 Zimmern. Die Erschliessung der Aufstockung erfolgt jeweils über eine freistehende Treppen- und Liftanlage zu den Laubengängen vor den Wohnungen. Das Wohnheim L!V im Gebäude B2 in der Landauerstrasse 21 wird ebenfalls umgebaut und mit der Aufstockung erweitert. Künftig werden dort 18 Personen in 4 Wohngemeinschaften betreut.
Neben der thermischen Sanierung der Gebäudehülle aller Gebäude, wird die gesamte Siedlung aufgewertet und erhält ein neues Farbkonzept. Die Balkone der bestehenden Wohnungen werden erweitert, der Sonnenschutz ausgetauscht und die Hauseingänge neu gestaltet. Zudem wird eine auf Grundwassernutzung basierende Heizzentrale mit dezentral in den Gebäuden stationierten Wärmepumpen sowie einer PV-Anlage auf allen Dächern eingebaut. Sämtliche Baumassnahmen erfolgen im bewohnten Zustand.














