Poolhaus Benkenstrasse

Umbau einer Garage zu einem Gartenhaus mit Pool
Privatauftrag
Basel
2018-2019
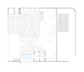
Das Wohnhaus an der Benkenstrasse 10/12 wurde 1935 in einem bürgerlichen und stadtnahen Basler Wohnquartier erbaut. Die damalige Eigentümerschaft kaufte zwei Parzellen, von denen eine zugunsten einer vergrösserten Gartenanlage unbebaut blieb. Im hinteren Bereich des Gartens wurde eine repräsentative Doppelgarage gebaut, deren Zufahrt den Garten in zwei Hälften teilt. Die Nutzung der Garage beschränkte sich zuletzt auf das Abstellen und Lagern von Velos, Gartenmöbeln und -geräten oder sie bot Topfpflanzen winterlichen Kälteschutz.
Die Disposition von Zufahrt und Doppelgarage wirken dem Gedanken einer grosszügigen Gartenanlage entgegen, sodass sich die neue Eigentümerschaft entschloss den Garten neu zu gestalten und ihren Traum von einem Gartenpool zu verwirklichen. Für die künftige Nutzung der Garage als gedecktes Gartenhaus wurde auf die weitere Nutzung als Autoeinstellplatz verzichtet.
Die Zufahrt wurde deshalb in der ursprünglichen Funktion und Ausprägung nicht mehr benötigt und konnte gekürzt werden. Damit konnte der Garten im hinteren Parzellenteil als zusammenhängender Grün- und Aufenthaltsbereich gestaltet werden.
Zur Kompensation der bisherigen Garagennutzung als „Abstellraum“ wurde im vorderen Bereich der Zufahrt ein gedeckter Velostellplatz inkl. Stauraum für Gartengeräte realisiert. Das freigewordene Garagengebäude wurde zu einem offenen, einladenden Gartenhaus mit Küche, Aufenthaltsbereich und einem Lagerschrank umgebaut. Das ursprünglich allseitig verschlossene Garagengebäude wird mit der weiten Öffnung zum Pool zum räumlichen Dreh- und Angelpunkt der Gartenaktivitäten.






