Domaine Klus 177

Umbau, Sanierung und Erweiterung der Gesamtanlage Domaine Klus 177
Auftraggeber: privat
Aesch
2016-2020
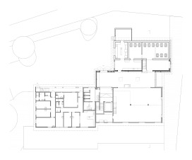
Die „Klus“, ein der Gemeinde Aesch zugehöriger Ausläufer des Juras, ist ein altes, wenig bekanntes Weinanbaugebiet. Umgeben von Rebstöcken befindet sich darin die „Klus 177" (ehem. Domaine Nussbaumer). Das Weingut beherbergt neben einem Wohngebäude für die Winzerfamilie und Personal auch einen Ökonomietrakt sowie eine alte Scheune.
Mit dem Besitzerwechsel (2015) erfolgte eine umfassende Neuausrichtung der Domaine. Die Gebäude sollten saniert und umgebaut und die inneren Abläufe optimiert werden. Künftige Gäste sollten ihren Besuch in der neuen Domaine als sinnliches Erlebnis nachhaltig in Erinnerung behalten. Der bis 2015 konventionell betriebene Weinanbau wird seither über alle Phasen nachhaltig betrieben (demeter). Dementsprechend war auch die gesamte Gebäudetechnik im Sinne eines autarken, nachhaltigen Energiekonzepts zu planen und zu realisieren (Wärmepumpe, Solarstrom, Dämmung Gebäudehülle). Des Weiteren waren Baustoffe aus nachwachsenden bzw. recyclebaren Materialien zu verwenden (Holz, Lehm, mineralische Farben, natürliche Dämmstoffe). Tieferes Verständnis für die betrieblichen Arbeits- und Produktionsprozesse erhielten wir vor Planungsbeginn durch Mitarbeit bei Weinlese und Kelterung.
Die Durchführung der Baumassnahmen erfolgte in drei Etappen.
1. Etappe: Sanierung und Umbau des Wohnhauses (Wohnung der Winzer im OG1 + DG)
2. Etappe: Umbau des Ökonomiegebäudes (ehemalige Abfüllanlage) zur Eventhalle
3. Etappe: Umbau der alten Scheune zum Degustations- und Verkaufsraum mit angrenzender Gästewohnung
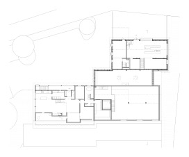
Wegen ihrer Lage zur Strasse und dem Ausblick auf die Weinberge der Domaine, wurde die ehemalige Scheune zum Degustations- und Verkaufsraum ausgebaut.
Diese Blickbeziehung ist auch die Referenz für die Gestaltung der Flaschenetikette. Deren abstrakte Strichgrafik zeigt die verschiedenen Rebfelder der Weinberge; dementsprechend sind die in der Flasche gekelterten Rebbereiche farbig hervorgehoben.










